• Overzicht
  • Foto's
  • Plattegronden
  • Omschrijving
  • Video
  • Kaart

Van Hogendorpstraat 193 H / 1051 CA AMSTERDAM

€ 500.000,- k.k. BESCHIKBAAR
Soort object
APPARTEMENT
Bouwjaar
1911
Woonoppervlakte
54
Aantal kamers
3

Foto's

Plattegronden

Omschrijving

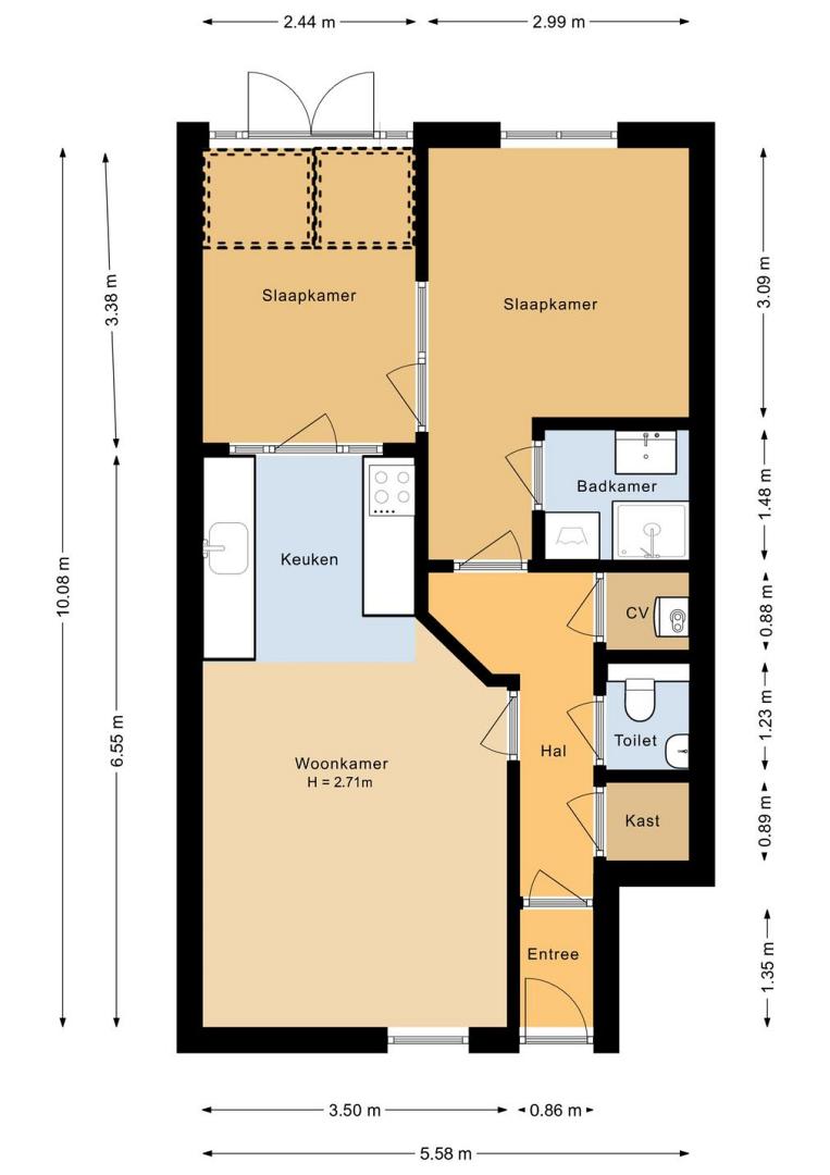
In één van de rustigste en meest karaktervolle straten van de Staatsliedenbuurt bevindt zich deze sfeervolle begane grond woning van maar liefst 54 m², met een zonnige, groene tuin. De woning combineert het comfort van modern wonen met de charme van een rustige buurt in Amsterdam-West en is gelegen op eigen grond. De indeling is als volgt: Via de entree kom je in de hal met ruimte voor een garderobe. De lichte woonkamer vormt het hart van de woning – een fijne plek om te ontspannen, te dineren of thuis te werken. De moderne open Nolte-keuken (mei 2022) sluit hier naadloos op aan. Deze is praktisch ingericht, met bijvoorbeeld een extra hoog werkblad. Daarnaast beschikt de keuken over een composiet werkblad, afzuigkap, kookplaat, vaatwasser, koelkast en mechanische ventilatie. De woning heeft twee comfortabele slaapkamers. De hoofdslaapkamer grenst direct aan de tuin, waardoor je hier geniet van rust en een groen uitzicht. De luxe badkamer is uitgevoerd in neutrale tinten en voorzien van een douche, wastafel en aansluiting voor de wasmachine. In de hal bevindt zich een separaat toilet. De tweede slaapkamer is flexibel in te delen als werkruimte, logeerkamer, kinderkamer of zelfs eetkamer. Dankzij de tuingerichte uitbouw met serre-achtige uitstraling en openslaande deuren naar de tuin is dit een bijzonder lichte ruimte met mooi zicht op het groen. De prachtig aangelegde achtertuin is één van de grootste pluspunten van deze woning. Dit is geen standaard stadstuin, maar een met zorg ontworpen, groene buitenruimte met een bijzondere variëteit aan bomen en beplanting. Zo vind je hier een pruimenboom, appelboom, perenboom, amandelboom, olijfboom en een tulpenboom die in het voorjaar prachtig wit bloeit. In de winter zorgen onder andere de gele jasmijn en roze camelia voor kleur en levendigheid. Langs de gevel bij de slaapkamer groeit een druif, terwijl klimhortensia’s de schuttingen groen aankleden. Ook bevindt zich in de achtertuin een schuur die 5 m² aan berging biedt en is voorzien van elektra. De tuin van circa 50 m² ademt rust en natuurlijke charme, en door de doordachte inrichting is het onderhoud beperkt. Ook de voortuin, met onder andere rozemarijnstruiken, draagt bij aan de verzorgde en uitnodigende uitstraling van de woning. Bijzonderheden: * Eigen grond * Woonoppervlak van 54 m² * NEN-meetrapport aanwezig * Energielabel A * Nieuwe keuken (mei 2022) * Achtertuin met groene oase * Gezonde en actieve VvE * Servicekosten VvE: € 134,- per maand * HR++-glas in houten kozijnen * Marmoleumvloer op gewapende betonnen vloer * Separaat toilet Locatie: De woning ligt in de geliefde Staatsliedenbuurt in Amsterdam-West – een buurt waar stedelijke levendigheid en een sterk buurtgevoel samenkomen. De straat zelf is rustig en heeft een gemoedelijke sfeer, terwijl alle voorzieningen op een steenworp afstand liggen. In de directe omgeving vind je diverse speciaalzaken, koffiezaken, cafés en restaurants. Voor de dagelijkse boodschappen zijn er meerdere supermarkten en buurtwinkels op loopafstand. Met de fiets bereik je binnen enkele minuten de Jordaan, de Haarlemmerdijk of het centrum van Amsterdam. Voor liefhebbers van groen biedt de omgeving eveneens veel mogelijkheden. Het Westerpark en de aangrenzende Westergasfabriek liggen om de hoek en vormen een ideale plek om te wandelen, sporten of ontspannen. Daarnaast worden hier regelmatig culturele evenementen, markten en festivals georganiseerd. Zo geniet je van de stad wanneer je wilt, terwijl je ook gemakkelijk de rust kunt opzoeken – in het park of in je eigen tuin. De bereikbaarheid is uitstekend. Zowel met het openbaar vervoer (tram, bus en nabijgelegen stations) als met de fiets en auto ben je goed verbonden met de rest van de stad en de uitvalswegen. Daarmee is dit een ideale locatie voor wie rustig en comfortabel wil wonen, met het bruisende stadsleven binnen handbereik.

Video

Op de kaart

Van Hogendorpstraat 193 H
Interesse in Van Hogendorpstraat 193 H?
Wij begrijpen dat.