• Overzicht
  • Foto's
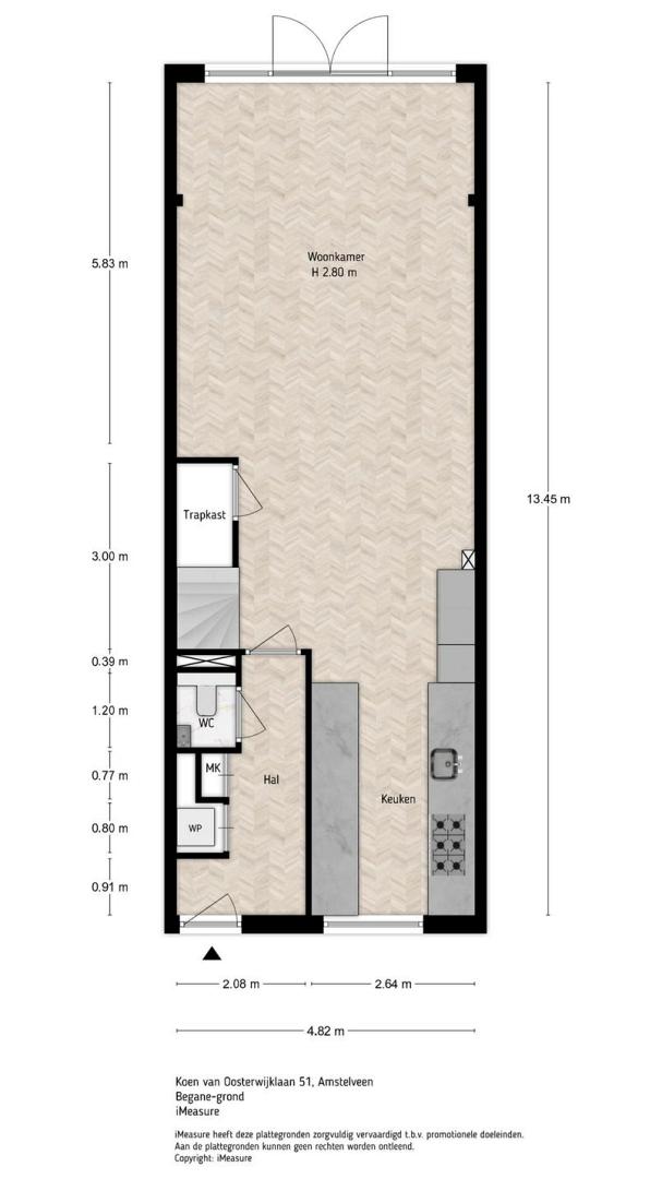
  • Plattegronden
  • Omschrijving
  • Kaart

Koen van Oosterwijklaan 51 / 1181 DS AMSTELVEEN

€ 1.085.000,- k.k. VERKOCHT ONDER VOORBEHOUD
Soort object
WOONHUIS
Bouwjaar
1924
Woonoppervlakte
146
Aantal kamers
5

Foto's

Plattegronden

Omschrijving

Koen van Oosterwijklaan 47, 49 & 51

In een rustige en geliefde straat, met veel groen in de directe omgeving, vind je dit kleinschalige vernieuwbouw project bestaande uit drie volledig gemoderniseerde woningen. Aan de Koen van Oosterwijklaan 47, 49 en 51 worden deze karaktervolle woningen tot in de puntjes verbouwd naar de woonstandaard van nu.

Alle drie de woningen zijn voorzien van een ruime, zonnige tuin op het zuiden, perfect voor wie houdt van buitenleven. De indeling is royaal, licht en modern – ideaal voor gezinnen, thuiswerkers of iedereen die comfortabel en duurzaam wil wonen.

Hoogwaardige kenmerken:

- Energielabel A+. Compleet vernieuwbouwd: Volledig geïsoleerd, moderne installaties, strak stucwerk.
- Vloerverwarming op de begane grond
- Openslaande deuren naar de tuin op het zuiden
- Woonoppervlakte variërend van 146 tot 150 m² exclusief tuinhuis/ berging
- Verwarming en koeling d.m.v. airco's op de verdiepingen
- Twee volwaardige badkamers per woning
- Stucwerk op de begane grond is saus klaar, op de verdiepingen behang klaar
- Zonnige achtertuinen op het zuiden, met volop privacy
- Koen van Oosterwijklaan 47 en 49 beschikken beide over een royaal tuinhuis/ berging van ca. 25 m² – perfect als werkruimte, atelier of opslag
- Koen van Oosterwijklaan 47 (hoekwoning) heeft als extra een parkeerplaats op eigen terrein
- Oplevering indicatie tweede kwartaal 2026
- Project notaris Amson & Kolhoff

Ligging:

De Koen van Oosterwijklaan is een rustige straat in de populaire jaren '30 woonwijk Randwijck met alle voorzieningen binnen handbereik. Denk aan winkels, scholen, sportgelegenheid, openbaar vervoer en uitvalswegen. De groene omgeving en kindvriendelijke sfeer maken dit een heerlijke plek om te wonen.

Meer weten over de woningen aan de Koen van Oosterwijklaan 47, 49 of 51? Neem contact met ons op voor de beschikbaarheid, vraagprijzen en een persoonlijke bezichtiging. Wacht niet te lang – deze unieke combinatie van locatie, kwaliteit en comfort komt zelden beschikbaar.

Disclaimer:
Aan deze informatie, documentatie en/of tekeningen kunnen geen rechten worden ontleend.
De inhoud wordt uitsluitend ter indicatie en algemene informatie verstrekt. Alle plannen, afmetingen, materiaalgebruik en specificaties zijn onder voorbehoud van wijzigingen, onjuistheden en typefouten. Wij aanvaarden geen aansprakelijkheid voor directe of indirecte schade voortvloeiend uit het gebruik van deze informatie. De informatie is niet contractueel bindend en dient altijd te worden geverifieerd.

English translation:

Koen van Oosterwijklaan 47, 49 & 51

In a quiet and popular street, with plenty of greenery nearby, you'll find this small-scale renovation project consisting of three fully modernized homes. At Koen van Oosterwijklaan 47, 49, and 51, these charming homes are being meticulously renovated to meet modern living standards.

All three homes feature a spacious, sunny south-facing garden, perfect for those who enjoy outdoor living. The layout is generous, bright, and modern – ideal for families, home workers, or anyone who wants to live comfortably and sustainably.

High-quality features:

- Energy label A+. Completely renovated: Fully insulated, modern installations, smooth plasterwork.
- Underfloor heating on the ground floor
- French doors leading to the south-facing garden
- Living space ranging from 146 to 150 m² excluding garden shed/storage
- Heating and cooling via Air conditioning on the upper floors
- Two full bathrooms per home
- Plasterwork on the ground floor is ready for painting, while the upper floors are ready for wallpapering
- Sunny south-facing back gardens, offering plenty of privacy
- Koen van Oosterwijklaan 47 and 49 both feature a spacious garden shed/storage unit of approximately 25 m² – perfect as a workspace, studio, or storage
- Koen van Oosterwijklaan 47 (corner house) also includes a parking space on its own property
- Expected completion in the second quarter of 2026
- Project notary Amson & Kolhoff

Location:

Koen van Oosterwijklaan is a quiet street in the popular 1930s residential area of ??Randwijck, with all amenities within easy reach. These include shops, schools, sports facilities, public transport, and major roads. The green surroundings and child-friendly atmosphere make this a wonderful place to live.

Want to know more about the homes at Koen van Oosterwijklaan 47, 49, or 51? Contact us for availability, asking prices, and a personal viewing. Don't wait too long – this unique combination of location, quality, and comfort is rarely available.

Disclaimer:
No rights can be derived from this information, documentation, and/or drawings.
The content is provided for general information purposes only. All plans, dimensions, materials used, and specifications are subject to change, inaccuracies, and typographical errors. We accept no liability for any direct or indirect damage resulting from the use of this information. This information is not contractually binding and should always be verified.

Op de kaart