€ 375.000,- k.k. BESCHIKBAAR
Soort object
APPARTEMENT
Bouwjaar
1926
Woonoppervlakte
50
Aantal kamers
3
Foto's
Plattegronden
Omschrijving
Licht appartement met balkon op eigen grond in rustige straatIn een rustige straat in De Baarsjes ligt dit lichte appartement van circa 50 m² met een balkon. De woning ligt op eigen grond en bevindt zich op de eerste verdieping van een karakteristiek pand uit de jaren ’30.
Het appartement is eenvoudig van afwerking en heeft onderhoud nodig, maar vormt een uitstekend uitgangspunt voor wie graag zelf zijn ideale woning wil creëren.
De basis is goed: een praktische indeling, veel lichtinval, een ruim balkon en een geliefde ligging in Amsterdam-West. De muren zijn recent nog wit geschilderd, wat het geheel een frisse aanblik geeft.
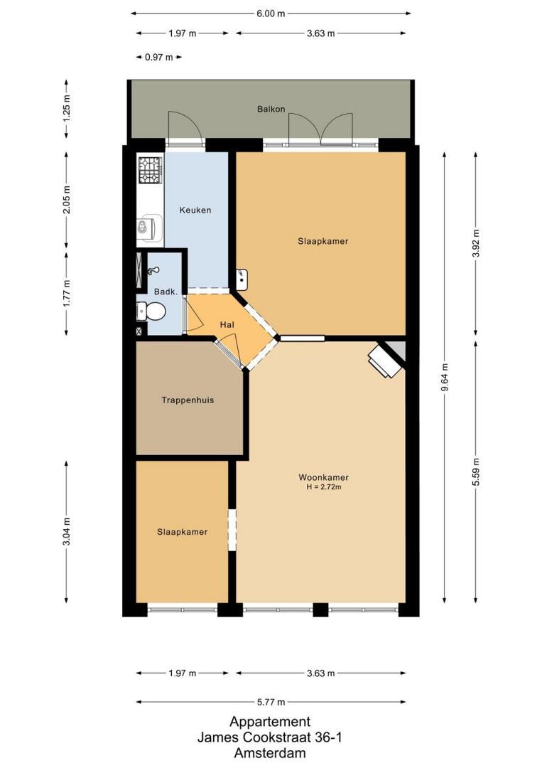
Indeling
Via het gemeenschappelijke trappenhuis bereik je de entree op de eerste verdieping. Hal met toegang tot alle vertrekken. De woonkamer ligt aan de voorzijde en biedt ruimte voor zowel een zit- als eethoek. Aan de achterzijde bevindt zich de slaapkamer met fontein en met openslaande deuren naar het balkon. Aangrenzend ligt de keuken, eveneens met toegang tot het balkon. De badkamer is compact en voorzien van douche en een toilet. Aan de voorzijde bevindt zich een tweede kamer, ideaal als slaap-, werk- of logeerruimte.
Omgeving
De James Cookstraat is een rustige straat met een prettig buurtgevoel, op loopafstand van het Erasmuspark en de winkels en cafés aan de Jan Evertsenstraat en de Admiraal de Ruijterweg. De bereikbaarheid is uitstekend: tram, bus en uitvalswegen liggen nabij, en met de fiets ben je binnen tien minuten in de Jordaan of het centrum van Amsterdam.
Bijzonderheden
– Woonoppervlakte circa 50 m² (conform NEN 2580-meetrapport)
– Balkon van circa 8 m² op het Oosten
– Eigen grond – geen erfpacht
– Rustige ligging in De Baarsjes
– Woning dient te worden gemoderniseerd
– Niet-bewoningsclausule en ouderdomsclausule van toepassing
– Oplevering in overleg
Video
Op de kaart

Interesse in James Cookstraat 36 1?
Wij begrijpen dat.