• Overzicht
  • Foto's
  • Plattegronden
  • Omschrijving
  • Kaart

Baanvak 79 / 1431 LH AALSMEER

€ 670.000,- k.k. Beschikbaar
Soort object
WOONHUIS
Bouwjaar
1988
Woonoppervlakte
130
Aantal kamers
4

Foto's

Plattegronden

Omschrijving

Sfeervol en instapklaar gezinshuis met luxe afwerking en energielabel A+.

Op een geliefde locatie in Aalsmeer bieden wij dit uitgebouwde en uitstekend onderhouden woonhuis aan: Baanvak 79.
Met een woonoppervlakte van circa 130 m², een perceel van 129 m², energielabel A+ en een hoogwaardig afwerkingsniveau is dit een woning waar u zo in kunt!


Indeling:

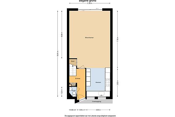
Begane grond:
Via de verzorgde voortuin bereikt u de entree met hal, meterkast en modern toilet. De ruime, uitgebouwde woonkamer is heerlijk licht dankzij de grote raampartijen en schuifpui naar de tuin. De open luxe keuken aan de voorzijde is voorzien van moderne inbouwapparatuur en biedt volop kastruimte — een perfecte keuken voor kookliefhebbers!

Eerste verdieping:
Op de eerste verdieping bevinden zich twee ruime slaapkamers en een moderne badkamer met ligbad, tweede toilet en een stijlvol wastafelmeubel. Beide slaapkamers zijn voorzien van een airconditioning.

Zolder:
De zolderverdieping beschikt over een royale slaapkamer, maar biedt tevens de mogelijkheid om deze eenvoudig te verdelen in twee kamers. Ideaal voor een groter gezin of als werk-/hobbyruimte.

Buitenruimte:

De zonnige achtertuin is verzorgd aangelegd en biedt ruimte voor een fijne zithoek en buitenactiviteiten.

Bijzonderheden:

- Uitgebouwd woonhuis met moderne afwerking;
- Luxe keuken met hoogwaardige inbouwapparatuur;
- Luxe badkamer met ligbad en tweede toilet en elektrische vloerverwarming;
- Zolder met twee dakkapellen en op maat gemaakte kastenwand;
- Drie (mogelijk vier) slaapkamers;
- Cv- ketel Remeha uit 2023;
- Energielabel A+ – duurzaam en energiezuinig;
- Voorzien van 14 zonnepanelen van 6 KW;
- Airconditioning in woonkamer en twee slaapkamers;
- Woonoppervlakte ca. 130 m²;
- Perceeloppervlakte ca. 129 m²;
- Gelegen in een kindvriendelijke en rustige woonwijk.

Englisch translation:

Charming, move-in ready family home with luxurious finishes and an A+ energy label.

In a popular location in Aalsmeer, we offer this extended and excellently maintained house: Baanvak 79.
With a living area of ??approximately 130 m², a 129 m² plot, an A+ energy label, and high-quality finishes, this is a home you can move straight into!


Layout:

Ground floor:
Through the well-maintained front garden, you reach the entrance hall with a meter cupboard and a modern toilet. The spacious, extended living room is wonderfully bright thanks to the large windows and sliding doors to the garden. The open-plan, luxury kitchen at the front is equipped with modern built-in appliances and offers ample cupboard space — a perfect kitchen for cooking enthusiasts!

First floor:
On the first floor, you'll find two spacious bedrooms and a modern bathroom with a bathtub, a second toilet, and a stylish vanity. Both bedrooms are equipped with air conditioning.

Attic:
The attic floor features a spacious bedroom, but also offers the possibility of easily dividing it into two rooms. Ideal for a larger family or as a work/hobby space.

Outdoor Space:

The sunny backyard is well-maintained and offers space for a pleasant seating area and outdoor activities.

Features:

- Extended house with modern finishes;
- Luxury kitchen with high-quality built-in appliances;
- Luxury bathroom with bathtub, second toilet, and electric underfloor heating;
- Attic with two dormer windows and custom-made wardrobes;
- Three (possibly four) bedrooms;
- Remeha central heating boiler from 2023;
- Energy label A+ – sustainable and energy-efficient;
- Equipped with 14 solar panels of 6 kW;
- Air conditioning in the living room and two bedrooms;
- Living area approx. 130 m²;
- Plot area approx. 129 m²;
- Located in a child-friendly and quiet residential area;

Op de kaart